Diseñamos la conectividad del futuro

Ingeniería · Telecomunicaciones · Diseño · Tecnología

En RedPlan Studio integramos ingeniería, telecomunicaciones, diseño y transformación digital para desarrollar proyectos funcionales, profesionales y listos para ejecutar.

Logo principal RedPlan Studio

Sobre Nosotros

Somos una marca orientada al desarrollo técnico integral de proyectos, combinando precisión, diseño, documentación e innovación para entregar soluciones reales a empresas, aliados y clientes.

RedPlan Studio presta servicios profesionales y especializados en arquitectura, ingeniería, telecomunicaciones, documentación técnica, modelado BIM, digitalización, diseño de interiores y soluciones tecnológicas.

Nuestro enfoque está dirigido a construir proyectos bien estructurados, con entregables de calidad, visión estratégica y acompañamiento técnico en cada etapa del proceso.

Equipo técnico en planeación de proyectos

Nuestros Servicios

Desarrollamos soluciones especializadas en documentación técnica, infraestructura tecnológica, diseño y soporte integral para empresas y proyectos de distinta escala.

Estrategia, consultoría y formación especializada

Estrategia, consultoría y formación especializada

Acompañamiento técnico y estratégico, asesoría especializada y procesos de capacitación orientados a la transferencia de conocimiento y fortalecimiento de capacidades.

Telecomunicaciones y redes

Infraestructura tecnológica y telecomunicaciones

Diseño de redes FTTH, diagramas técnicos, conectividad, despliegue de redes y documentación para operadores.

Planos técnicos y arquitectura

Planos técnicos e ingeniería

Elaboración de planos arquitectónicos, eléctricos, estructurales y técnicos en formatos profesionales.

Diseño de interiores

Diseño de interiores

Propuestas funcionales y estéticas para espacios residenciales, comerciales e institucionales.

BIM y transformación digital

Modelado BIM y soluciones digitales

Modelado BIM, digitalización de proyectos, automatización, visualización y soporte tecnológico empresarial.

Proyectos

Paquetes RedPlan Studio

Diseñamos paquetes flexibles para que cada cliente encuentre una solución alineada con su nivel de necesidad, alcance técnico y proyección de crecimiento.

Plan Estratégico

Consultoría y formación especializada

  • Acompañamiento técnico y estratégico
  • Asesoría especializada para proyectos
  • Capacitación técnica personalizada
  • Transferencia de conocimiento
  • Fortalecimiento de capacidades en equipos de trabajo
  • Orientación para implementación y mejora de procesos
Plan Esencial

Desarrollo técnico integral de proyectos

  • Elaboración de planos técnicos (FTTH, redes, eléctricos, etc.)
  • Modelado básico (AutoCAD / base BIM)
  • Memoria técnica del proyecto
  • Entrega en formatos profesionales (DWG, PDF)
Plan Profesional

Ingeniería completa

  • Todo lo del Plan Esencial
  • Modelado BIM detallado
  • Documentación técnica completa
  • Validación de normativas
  • Ajustes y correcciones incluidos
  • Acompañamiento técnico durante el desarrollo
Plan Empresarial

Outsourcing Técnico

  • Soporte técnico continuo
  • Desarrollo de planos bajo demanda
  • Entregables mensuales
  • Prioridad en tiempos de entrega
  • Comunicación directa tipo aliado estratégico
  • Escalabilidad según volumen de trabajo
Plan Integral

Diseño + Implementación

  • Diseño técnico completo
  • Planeación de infraestructura
  • Digitalización de proyectos
  • Acompañamiento en implementación
  • Supervisión técnica
  • Optimización de red / proyecto
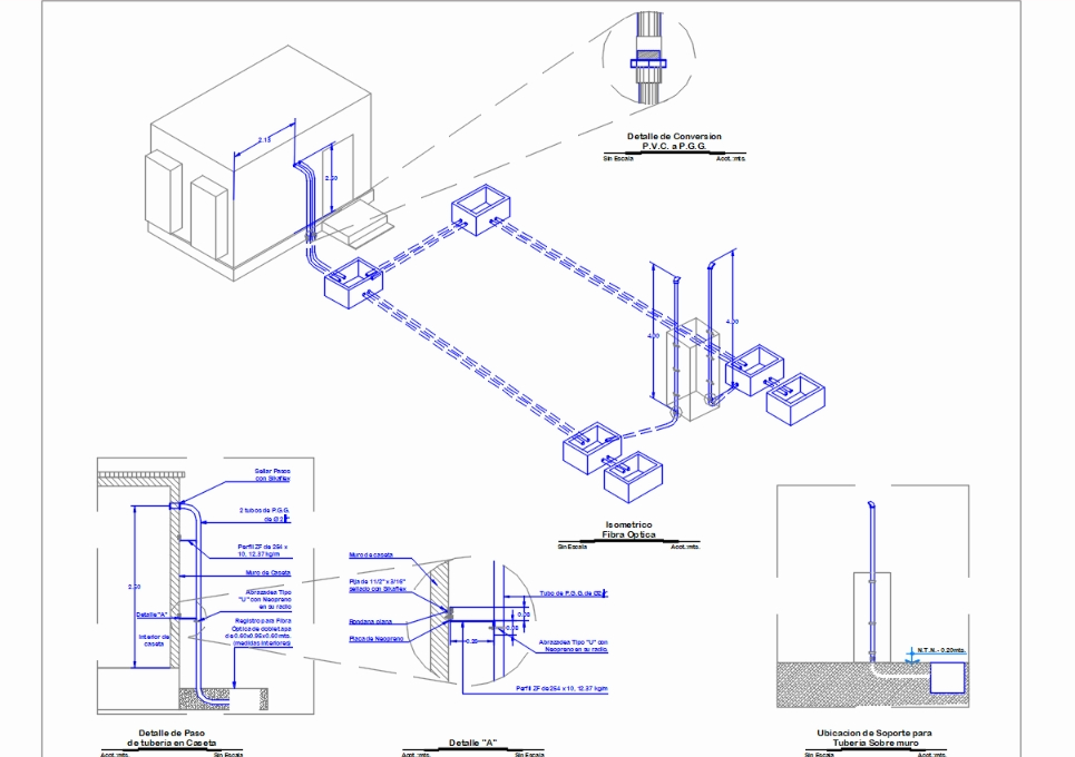
Red FTTH Urbana

Red FTTH Urbana

Diseño e implementación de red de fibra óptica con planeación técnica.

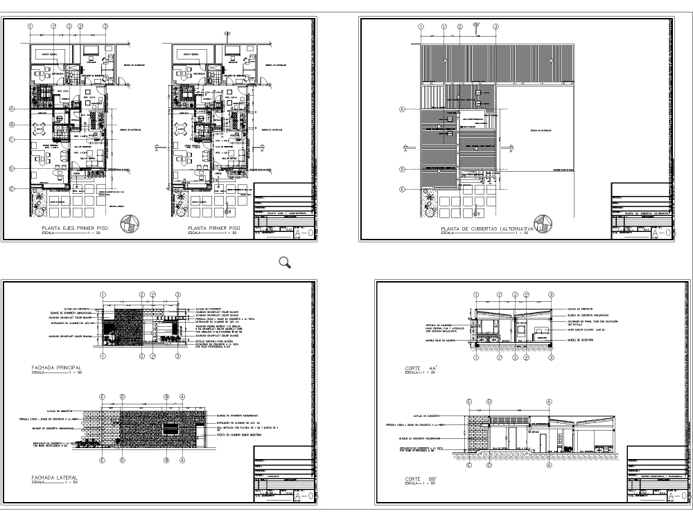
Planos Arquitectónicos

Planos Arquitectónicos

Desarrollo de planos técnicos en AutoCAD con entregables profesionales.

Diseño Interior Comercial

Diseño Interior Comercial

Optimización de espacios con enfoque moderno y funcional.

Modelado BIM

Modelado BIM

Modelado digital de infraestructura para control y visualización técnica.

Contacto

Cuéntanos lo que necesitas y te ayudamos a estructurar la mejor solución para tu proyecto.

Información de contacto

WhatsApp: 300 883 7626

Correo: redplanstudio@gmail.com

Ubicación: Ibagué, Colombia

Horario: Lunes a sábado

Hablar por WhatsApp Hablar por WhatsApp

Solicita información